Neue Wohngebiete
Baugrundstücke für Eigenheime entstehen
Die Stadtwerke Wernigerode betreuen die Erschießung verschiedener Wohngebiete in Wernigerode und den umliegenden Ortsteilen. In diesem Zusammenhang bieten wir nicht nur Grundstücke zum Verkauf an, sondern schaffen zudem beste Voraussetzungen für die Errichtung Ihres neuen Eigenheims.
Das neue Wohngebiet "Börstedter Straße" befindet sich im Südosten des Ortsteils Silstedt – am Ortsausgang Richtung Derenburg. Es umfasst eine Fläche von rund 25.000 Quadratmeter mit 32 Grundstücken. Die Grundstücksgrößen liegen zwischen 677 und 897 Quadratmeter.
Das Gebiet ist für die Bebauung mit eingeschossigen Wohnhäusern in offener Bauweise vorgesehen. Besonders erfreulich: Die örtlichen Vorschriften hinsichtlich der Vorgaben zur Dachneigung haben sich geändert. Ursprünglich musste die Mindestdachneigung der Hauptdächer der Wohngebäude 42 Grad betragen. Laut 2. Änderung des Bebauungsplanes kann jetzt auch mit nur mindestens 28 Grad gebaut werden. Dies eröffnet zusätzliche Gestaltungsmöglichkeiten.
Der Grundstückspreis beläuft sich auf 145 Euro pro Quadratmeter. Der Verkauf erfolgt direkt über die Stadtwerke Wernigerode. Sie erhalten die Grundstücke provisions- und bauträgerfrei. Es besteht zudem keine sofortige Bauverpflichtung! Wenn Sie mit den Tiefbauarbeiten auf Ihrem Grundstück beginnen, wird parallel die archäologische Dokumentation vorgenommen.
Das Wohngebiet wurde bereits mit Ver- und Entsorgungsleitungen erschlossen. Es fallen daher lediglich die Kosten für die Hausanschlussleitungen an.
Im Zuge der Erschließungsarbeiten wurde der Radweg an der Harzstraße bis zum Ortsausgang verlängert. Sie haben somit auch per Rad nun eine direkte Anbindung nach Derenburg bzw. Wernigerode.
Weitere Informationen:
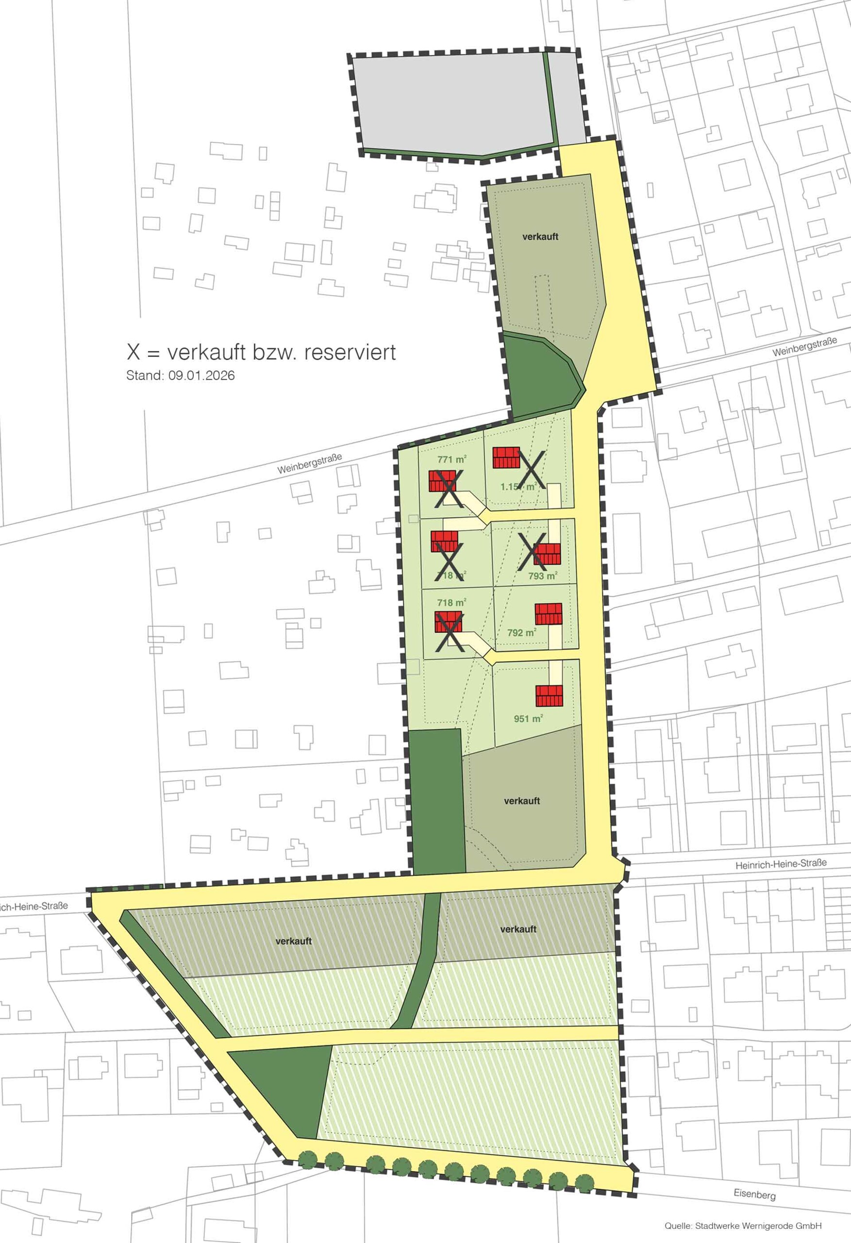
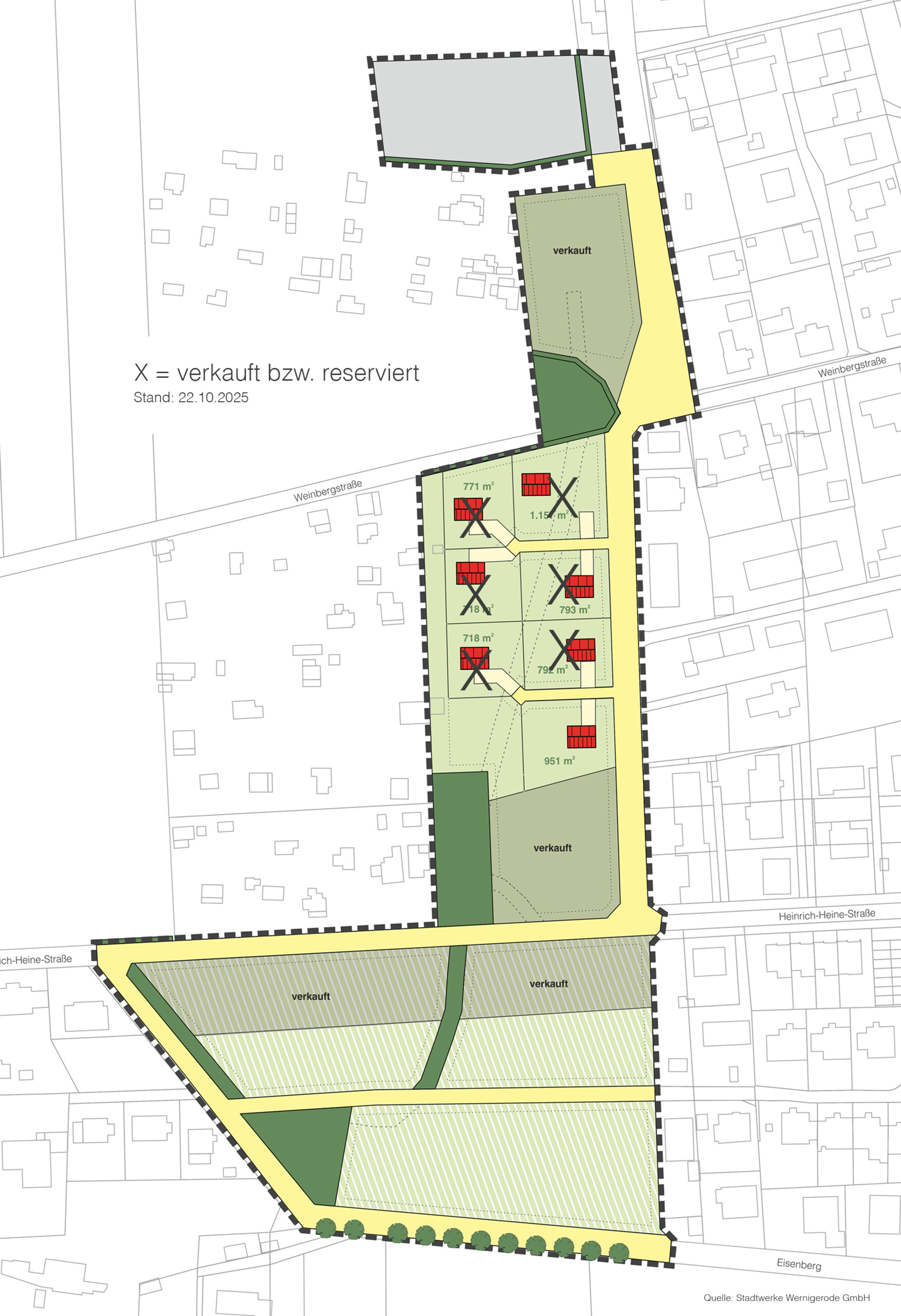
Das Gebiet "Ziegenbergblick" befindet sich am westlichen Ortsrand von Wernigerode – zwischen den Straßen "Eisenberg" und "Am Ziegenberg". Es umfasst in Summe rund 35.000 Quadratmeter und ist für die Bebauung mit ein- bis dreigeschossigen Wohngebäuden in offener und geschlossener Bauweise vorgesehen.
In Summe sind ungefähr 40 Grundstücke auf der Gesamtfläche geplant (Bebauungsplan 67 Ziegenbergblick). Die mit schraffierter Fläche dargestellten Grundstücke befinden sich im Eigentum der Stadt Wernigerode und werden auch über diese verkauft. Die Grundstücke auf den restlichen Flächen sind Eigentum der Stadtwerke Wernigerode. Hier stehen aktuell noch 2 Grundstücke für Eigenheime zum Verkauf (Preis auf Anfrage).
Das neu entstehende Wohngebiet "An der Gartenbreite" liegt östlich der Straße Gartenbreite – am Rand des Ortsteils Minsleben. Das von den Stadtwerken Wernigerode zu erschließende Areal umfasst rund 14.000 Quadratmeter und bietet Platz für 19 Grundstücke.
Die Fläche steht für die Bebauung mit eingeschossigen Einfamilienhäusern – Einzel- oder Doppelhäuser – zur Verfügung. Die Erschließung ist für 2026 geplant.
Bebauungsplan 70 An der Gartenbreite
Der Verkauf der Grundstücke erfolgt über die Stadtwerke Wernigerode.
Haben Sie Interesse am Erwerb eines Grundstücks oder möchten Sie mehr über die Erschließung der neuen Wohngebiete erfahren? Für nähere Informationen stehen wir Ihnen gern zur Verfügung.
Doreen Schläger
Sachbearbeitung Netze und Erzeugung
